Slimdrive SLT-FR * Automatic telescopic sliding door system for escape and rescue routes for use in extremely narrow glass façades
- Escape route function with redundant drive design
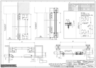
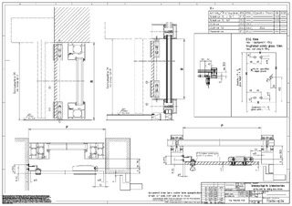
- Two parallel-tracks guide the door leaves and thus achieve high opening widths
- Very quiet running, low-wear direct current drive with a height of only 7 cm
- Can be networked, and integrated into the building automation via open standard (BACnet)
- Independent error recognition and recording
- Freely configurable inputs and outputs for different functions
- Integrated battery for emergency opening and closing in the event of a power failure
- Various mechanical and electrical locks are optionally available
Application Areas
- Double and four-leaf sliding door systems in escape and rescue routes
- In confined spaces with small clear opening width or little space next to the door opening
- Interior and exterior doors with high access frequency
- Opening widths of 1000 to 3600 mm possible
- Door leaf weights up to 80 kg per leaf
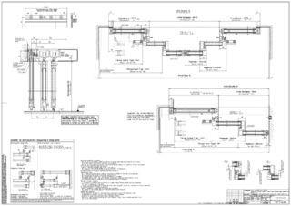
Installation situations in reference objects and videos
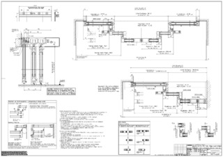
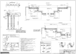
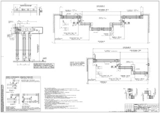
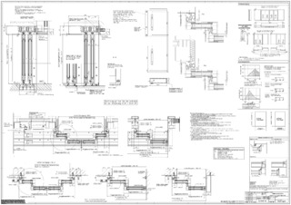
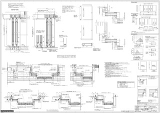
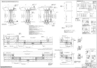
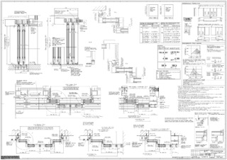
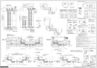
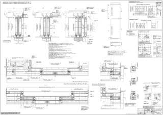
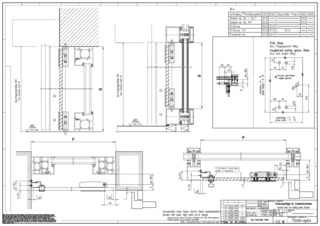
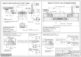
Technical data
| Slimdrive SLT-FR | |
| For 2-leaf door systems | Yes |
| For 4-leaf door systems | Yes |
| Height | 70 mm |
| Depth | 247 mm |
| Leaf weight (max.) 2-leaf | 80 kg |
| Leaf weight (max.) 4-leaf | 70 kg |
| Opening width 2-leaf | 1000 mm - 3000 mm |
| Opening width 4-leaf | 1600 mm - 3600 mm |
| Service temperature | -15 - 50 °C |
| IP rating | IP20 |
| Disconnection from mains | Main switch in the drive |
| Standard conformity | AutSchR, DIN 18650, DIN EN ISO 13849: Performance Level D, EN 16005 |
Downloads
LABELLING OBLIGATION: © Robert Les / GEZE GmbH
LABELLING OBLIGATION: © Pau Esculies / GEZE GmbH
LABELLING OBLIGATION: © Pau Esculies / GEZE GmbH
LABELLING OBLIGATION: © Robert Sprang / GEZE GmbH
LABELLING OBLIGATION: © Robert Sprang / GEZE GmbH
LABELLING OBLIGATION: © Robert Les / GEZE GmbH
LABELLING OBLIGATION: © Sigrid Rauchdobler / GEZE GmbH
LABELLING OBLIGATION: © Lothar Wels / GEZE GmbH
LABELLING OBLIGATION: © Lothar Wels / GEZE GmbH
LABELLING OBLIGATION: © Robert Sprang / GEZE GmbH
LABELLING OBLIGATION: © Dirk Wilhelmy / GEZE GmbH
LABELLING OBLIGATION: © Dirk Wilhelmy / GEZE GmbH
LABELLING OBLIGATION: © Dirk Wilhelmy / GEZE GmbH
LABELLING OBLIGATION: © Dirk Wilhelmy / GEZE GmbH
LABELLING OBLIGATION: © Lorenz Frey / GEZE GmbH
LABELLING OBLIGATION: © Robert Sprang / GEZE GmbH
LABELLING OBLIGATION: © GEZE GmbH
LABELLING OBLIGATION: © Sigrid Rauchdobler / GEZE GmbH
Variants & Accessories
* Notice about the products displayed
The products mentioned above may vary in form, type, characteristics and function (design, dimensions, availability, approvals, standards etc.) depending on the country. For questions please contact your GEZE contact person or send us an E-Mail .