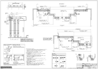
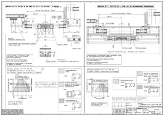
Slimdrive SLT-FR * Automatisches Teleskop-Schiebetürsystem für Flucht- und Rettungswege zum Einsatz in schmalsten Glasfassaden
- Fluchtwegfunktion mit redundanter Antriebsausführung
- Zwei parallel liegende Laufschienen führen die Türflügel und erreichen damit hohe Öffnungsweiten
- Sehr laufruhiger verschleißarmer Gleichstrom-Antrieb mit nur 7 cm Höhe
- Vernetzbar und mittels offenem Standard (BACnet) in die Gebäudeautomation integrierbar
- Eigenständige Fehlererkennung und Protokollierung
- Frei parametrierbare Ein- und Ausgänge für unterschiedliche Funktionen
- Integrierter Akku für Notöffnung und -schließung bei Stromausfall
- Verschiedene mechanische und elektrische Verriegelungen sind optional verfügbar
Anwendungsbereiche
- Zwei- und vierflügelige Schiebetürsysteme in Flucht- und Rettungswegen
- Bei beengten Platzverhältnissen mit geringer lichter Öffnungsweite oder wenig Platz neben der Türöffnung
- Innen- und Außentüren mit hoher Begehfrequenz
- Öffnungsweiten von 1000 bis 3600 mm möglich
- Türflügelgewichte bis 80 kg je Flügel
Einbausituationen in Referenzobjekten und Videos
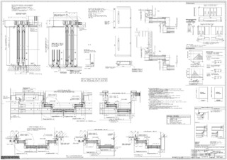
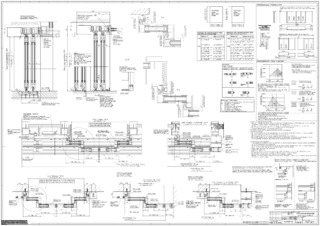
Technische Daten zum Produkt
| Slimdrive SLT-FR | |
| Für 2-flügelige Türsysteme | Ja |
| Für 4-flügelige Türsysteme | Ja |
| Höhe | 70 mm |
| Tiefe | 247 mm |
| Flügelgewicht (max.) 2-flügelig | 80 kg |
| Flügelgewicht (max.) 4-flügelig | 70 kg |
| Öffnungsweite 2-flügelig | 1000 mm - 3000 mm |
| Öffnungsweite 4-flügelig | 1600 mm - 3600 mm |
| Betriebstemperatur | -15 - 50 °C |
| Schutzart | IP20 |
| Netztrennung | Hauptschalter im Antrieb |
| Normkonformität | AutSchR, DIN 18650, DIN EN ISO 13849: Performance Level D, EN 16005 |
Downloads
KENNZEICHNUNGSPFLICHT: © Robert Les / GEZE GmbH
KENNZEICHNUNGSPFLICHT: © Pau Esculies / GEZE GmbH
KENNZEICHNUNGSPFLICHT: © Pau Esculies / GEZE GmbH
KENNZEICHNUNGSPFLICHT: © Robert Sprang / GEZE GmbH
KENNZEICHNUNGSPFLICHT: © Robert Sprang / GEZE GmbH
KENNZEICHNUNGSPFLICHT: © Robert Les / GEZE GmbH
KENNZEICHNUNGSPFLICHT: © Lothar Wels / GEZE GmbH
KENNZEICHNUNGSPFLICHT: © Lothar Wels / GEZE GmbH
KENNZEICHNUNGSPFLICHT: © Sigrid Rauchdobler / GEZE GmbH
KENNZEICHNUNGSPFLICHT: © Dirk Wilhelmy / GEZE GmbH
KENNZEICHNUNGSPFLICHT: © Dirk Wilhelmy / GEZE GmbH
KENNZEICHNUNGSPFLICHT: © Dirk Wilhelmy / GEZE GmbH
KENNZEICHNUNGSPFLICHT: © Dirk Wilhelmy / GEZE GmbH
KENNZEICHNUNGSPFLICHT: © Robert Sprang / GEZE GmbH
KENNZEICHNUNGSPFLICHT: © Lorenz Frey / GEZE GmbH
KENNZEICHNUNGSPFLICHT: © Robert Sprang / GEZE GmbH
KENNZEICHNUNGSPFLICHT: © Sigrid Rauchdobler / GEZE GmbH
KENNZEICHNUNGSPFLICHT: © GEZE GmbH
Varianten & Zubehör
* Hinweis zu den gezeigten Produkten
Die aufgeführten Produkte können in der Form, Art, Eigenschaft und Funktion (Design, Maße, Verfügbarkeit, Zulassungen, Normen usw.) länderspezifisch abweichen. Kontaktieren Sie hierzu bitte Ihren GEZE Ansprechpartner oder senden Sie uns gerne eine E-Mail .