R-ISM-Gleitschiene BG VP TS 5000 * Mit Schließfolgeregelung, beidseitiger elektrischer Feststellung, Rauchschalterzentrale und Hebeln
- Integrierte elektrische Feststellung
- Haltekraft der elektromechanischen Feststellung stufenlos einstellbar
- Integrierte Rauchschalterzentrale
- Rauchschalter mit Verschmutzungsanzeige und Alarmschwellennachführung
- Zusätzliche Rauchmelder anschließbar
- Betriebsspannung 230 V AC
- Schließfolgeregelung hält den Gangflügel in Warteposition bis der Standflügel geschlossen ist
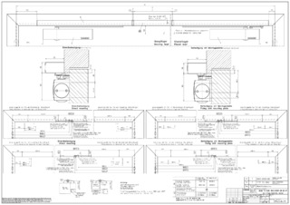
- Mit verschraubtem Gleitstein
- Durch Langlöcher in der Montageposition um 4 mm horizontal verstellbar
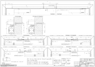
Anwendungsbereiche
- Zweiflügelige Türen mit Schließfolgeregelung
- Feststellanlagen mit integrierter Feststellung und Rauchschalter
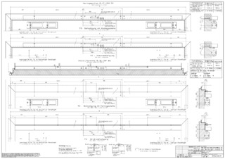
- Montage auf der Bandgegenseite
- Rechte und linke Anschlagtüren
- Symmetrische und asymmetrische Türteilung möglich
- Bis 2800 mm Bandabstand
- Minimaler Bandabstand 1645 mm
Technische Daten zum Produkt
| R-ISM-Gleitschiene BG VP TS 5000 | |
| Versorgungsspannung | 230 V |
| Eingangsspannung | 230 V AC |
| Frequenz Versorgungsspannung | 50/60 Hz |
| Einschaltdauer | 100 % |
| Schutzart | IP20 |
| Minimaler Bandabstand | 1645 mm |
| Minimale Standflügelbreite | 380 mm |
| Normkonformität | EN 1155, EN 1158 |
| Zulassungen | Allgemeine bauaufsichtliche Zulassung des DIBt als Feststellanlage |
| Länge | 2645 mm |
| Breite | 55 mm |
| Höhe | 30 mm |
| Öffnungsbegrenzung nachrüstbar | Ja |
| Feststellung | Elektrisch |
| Feststellung überfahrbar | Ja |
| Feststellbereich | 80 ° - 130 ° |
| Rauchschalter integriert | Ja |
| Verschmutzungsanzeige | Ja |
| Alarmschwellennachführung | Ja |
| Netzteil integriert | Ja |
| Schließfolgeregelung integriert | Ja |
| Höhenkorrektur möglich | Ja |
| Flexible Öffnungsbegrenzung | Ja |
Downloads
Varianten & Zubehör
* Hinweis zu den gezeigten Produkten
Die aufgeführten Produkte können in der Form, Art, Eigenschaft und Funktion (Design, Maße, Verfügbarkeit, Zulassungen, Normen usw.) länderspezifisch abweichen. Kontaktieren Sie hierzu bitte Ihren GEZE Ansprechpartner oder senden Sie uns gerne eine E-Mail .