TS 500 NV mit Feststellung * Bodentürschließer für einflügelige Anschlag-/Pendeltüren bis 1100 mm Flügelbreite mit optionaler Feststellung
- Stufenlos einstellbare Schließkraft EN 1-4
- Für rechts und links angeschlagene Türen ohne Umstellung verwendbar
- Mechanische Feststellung im Schließer mit Feststellbereich 85°/90°/105°/120°
- Schließgeschwindigkeit kann individuell angepasst werden
- Hydraulischer Endschlag, der die Tür kurz vor Geschlossenlage beschleunigt
- Integrierte Öffnungsdämpfung, bremst stark aufgeworfene Türen ab
Anwendungsbereiche
- Rechte und linke Anschlag- und Pendeltüren
- Anschlag- und Pendeltüren bis 1100 mm Flügelbreite und 150 kg Gewicht
- Bodenmontage verdeckt liegend
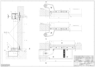
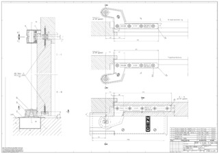
Technische Daten zum Produkt
| TS 500 NV mit Feststellung | |
| Einsatz an Anschlag-/Pendeltür | Anschlagtür, Pendeltür |
| Montageart | Boden |
| Öffnungswinkel (max.) | 170 ° |
| Schließkraft nach EN 1154 | EN 1 - 4 |
| Flügelbreite (max.) | 1100 mm |
| Flügelgewicht (max.) | 150 kg |
| DIN Richtung | links / rechts |
| Schließkraft einstellbar | Ja, stufenlos |
| Schließgeschwindigkeit einstellbar | Ja |
| Endschlag einstellbar | Ja, über Ventil |
| Öffnungsdämpfung integriert | mechanisch fix |
| Position Schließkraftverstellung | Oben |
| Feststellung | Mechanisch |
Downloads
Varianten & Zubehör
* Hinweis zu den gezeigten Produkten
Die aufgeführten Produkte können in der Form, Art, Eigenschaft und Funktion (Design, Maße, Verfügbarkeit, Zulassungen, Normen usw.) länderspezifisch abweichen. Kontaktieren Sie hierzu bitte Ihren GEZE Ansprechpartner oder senden Sie uns gerne eine E-Mail .