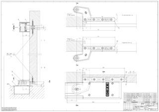
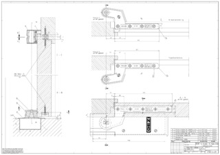
TS 500 NV * Bodentürschließer für einflügelige Anschlag- und Pendeltüren bis 1100 mm Flügelbreite mit einstellbarer Schließkraft EN 1-4 ohne Feststellung
- Stufenlos einstellbare Schließkraft EN 1-4
- Für rechts und links angeschlagene Türen ohne Umstellung verwendbar
- Schließgeschwindigkeit kann individuell angepasst werden
- Hydraulischer Endschlag, der die Tür kurz vor Geschlossenlage beschleunigt
- Integrierte Öffnungsdämpfung, bremst stark aufgeworfene Türen ab
- Alle Funktionen von oben und im eingebauten Zustand einstellbar
Anwendungsbereiche
- Feuer- und Rauchschutztüren
- Rechte und linke Anschlag- und Pendeltüren
- Anschlag- und Pendeltüren bis 1100 mm Flügelbreite und 150 kg Gewicht
- Bodenmontage verdeckt liegend
Technische Daten zum Produkt
| TS 500 NV | |
| Eignung Brandschutztüren | Ja |
| Barrierefrei nach DIN 18040 bis Flügelbreite (max.) in mm | 1100 mm |
| Einsatz an Anschlag-/Pendeltür | Anschlagtür, Pendeltür |
| Montageart | Boden |
| Öffnungswinkel (max.) | 170 ° |
| Schließkraft nach EN 1154 | EN 1 - 4 |
| Flügelbreite (max.) | 1100 mm |
| Flügelgewicht (max.) | 150 kg |
| DIN Richtung | links / rechts |
| Schließkraft einstellbar | Ja, stufenlos |
| Schließgeschwindigkeit einstellbar | Ja |
| Endschlag einstellbar | Ja, über Ventil |
| Öffnungsdämpfung integriert | mechanisch fix |
| Position Schließkraftverstellung | Oben |
Downloads
Varianten & Zubehör
* Hinweis zu den gezeigten Produkten
Die aufgeführten Produkte können in der Form, Art, Eigenschaft und Funktion (Design, Maße, Verfügbarkeit, Zulassungen, Normen usw.) länderspezifisch abweichen. Kontaktieren Sie hierzu bitte Ihren GEZE Ansprechpartner oder senden Sie uns gerne eine E-Mail .