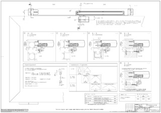
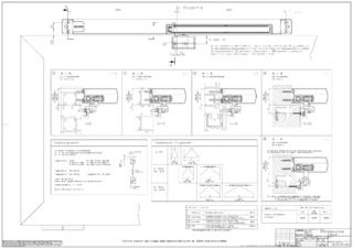
E 170 230 V * Scherenantrieb als Designlösung zur optimalen Lüftung
- Vereint den Oberlichtöffner OL 90 N und den Elektrolinearantrieb E 212 in einem Produkt
- Scheren im Abdeckprofil integriert
- Ansprechendes Design und zusätzlicher Schutz vor Verschmutzung
- Öffnungsweite ist variabel einstellbar und kann damit vor Ort flexibel reguliert werden
Anwendungsbereiche
- Natürliche Lüftung im Fassadenbereich
- Einwärts öffnende Kippflügel
- Montage an Holz-, Kunststoff- oder Metallfenstern
- Rahmenmontage
Technische Daten zum Produkt
| E 170 230 V | |
| Abmessungen | 547 x 85 x 35 mm |
| i-Maß (min.) | 20 mm |
| i-Maß (max.) | 70 mm |
| Öffnungsweite (max.) | 170 mm |
| Öffnungsgeschwindigkeit Lüftung | 4.9 mm/s |
| Druckkraft | 1500 N |
| Zugkraft | 1500 N |
| Füllgewicht (max.) | 80 kg/m² |
| Frequenz | 50 Hz |
| Betriebsspannung | 230 V AC |
| Stromaufnahme | 0.2 A |
| Leistungsaufnahme | 90 W |
| Einschaltdauer | 25 % |
| Min. Aderquerschnitt | 1.5 mm² |
| Anzahl der Adern | 4 Adern |
| Betriebstemperatur | -20 - 60 °C |
| Schutzart | IP42 |
| Art der Hubverkürzung | Mechanisch |
| Endlagenabschaltung ausgefahren | Endschalter |
| Endlagenabschaltung eingefahren | Endschalter |
| Überlastabschaltung | Ja |
| Kippfenster EINWÄRTS Rahmenmontage | Ja |
Downloads
KENNZEICHNUNGSPFLICHT: © GEZE GmbH
Varianten & Zubehör
* Hinweis zu den gezeigten Produkten
Die aufgeführten Produkte können in der Form, Art, Eigenschaft und Funktion (Design, Maße, Verfügbarkeit, Zulassungen, Normen usw.) länderspezifisch abweichen. Kontaktieren Sie hierzu bitte Ihren GEZE Ansprechpartner oder senden Sie uns gerne eine E-Mail .