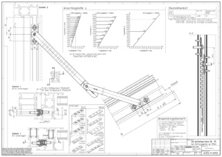
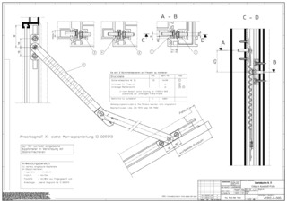
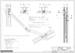
Sicherheitsschere Nr. 35 * Für die Absicherung von Kippflügeln
- Ermöglichen eine dauerhaft feste Verbindung zwischen Fensterrahmen und Fensterflügel
- Einsetzbar ab einer Flügelhöhe von 300 mm
- Je nach Flügelhöhe und Flügelgewicht kann eine Öffnungsweite bis ca. 700 mm realisiert werden
- Pro Fensterflügel werden zwei Sicherheitsscheren benötigt
Anwendungsbereiche
- Geeignet für Kippflügel
- Zu verwenden beim Einsatz eines Kettenantriebes an einem Kippfenster
- Montage an Holz-, Kunststoff- oder Metallfenstern
- Flügel- und Rahmenmontage
Downloads
Varianten & Zubehör
* Hinweis zu den gezeigten Produkten
Die aufgeführten Produkte können in der Form, Art, Eigenschaft und Funktion (Design, Maße, Verfügbarkeit, Zulassungen, Normen usw.) länderspezifisch abweichen. Kontaktieren Sie hierzu bitte Ihren GEZE Ansprechpartner oder senden Sie uns gerne eine E-Mail .