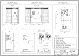
Levolan 120 mit Seitenteil Glas * Schiebebeschlag für 120 kg schwere Glasflügel und Festfeldbefestigung
- Schiebebeschlag für Glastüren bis 120 kg Flügelgewicht und mit seitlichem Festfeld
- Mit ein- oder beidseitiger Dämpfung für Türen bis zu 120 kg Flügelgewicht, sodass die Tür sanft abgebremst und selbstständig in die Endlage gezogen wird
- Kleine Boden- und Seitenprofile ermöglichen ein großzügiges Lichtraumprofil für Festfeld und Glasschiebetür
- Festfeldverglasung über Gummidichtungen schnell und einfach realisierbar
- Grundbeschlag wird mit modularer Festfeldvariante als "Add-on" ergänzt
Anwendungsbereiche
- Für designorientierte Schiebetüren im Innenbereich von Wohn- und Büroräumen
- Für alle ein- und mehrflügeligen Schiebetüren
- Befestigung an der Decke
- Für die Befestigung an Wand und Decke (direkt und verdeckt liegend) sowie Glasbefestigung
- Mit Levolan 120 SoftStop ein- oder beidseitig gedämpft
- Durch die Laufruhe mit Levolan 120 SoftStop insbesondere für Türen im Wohn- und Bürobereich geeignet
Einbausituationen in Referenzobjekten und Videos
Technische Daten zum Produkt
| Levolan 120 mit Seitenteil Glas | |
| Flügelmaterial | Glas |
| Flügelgewicht (max.) | 120 kg |
| Flügelanzahl | 1-flügelig, 2-flügelig |
| Flügelbreite (min.) | 640 mm |
| Flügelbreite (max.) | 1440 mm |
| Flügelhöhe (max.) | 3500 mm |
| Flügelstärke ab | 10 mm |
| Flügelstärke bis | 12 mm |
| Geometrie Laufschienenprofil | gerade |
| Montageart | Wand, Decke |
| Festfeld | Ja |
| Einzugsdämpfung | optional |
Downloads
Varianten & Zubehör
* Hinweis zu den gezeigten Produkten
Die aufgeführten Produkte können in der Form, Art, Eigenschaft und Funktion (Design, Maße, Verfügbarkeit, Zulassungen, Normen usw.) länderspezifisch abweichen. Kontaktieren Sie hierzu bitte Ihren GEZE Ansprechpartner oder senden Sie uns gerne eine E-Mail .