ECdrive

ECdrive T2-FR * Automatisches Linear-Schiebetürsystem in Flucht- und Rettungswegen für Türen bis 140 kg Flügelgewicht

ECdrive T2 / ECdrive T2-FR
  • Schlankes Design mit nur 100 mm Haubenhöhe für mehr gestalterischen Freiraum
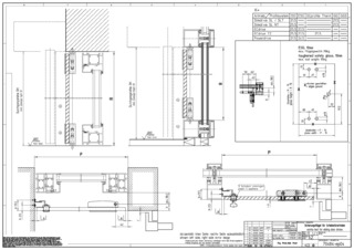
  • Mit Doppelrollenwagen und GCprofile Therm bis 140 kg Flügelgewicht zulässig
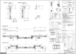
  • Effiziente Montage durch vorgebohrte Laufschiene und Langlöcher
  • Durchgehende Bodenführung zur kontrollierten Ableitung von Regenwasser erhältlich
  • Integrierte Kabelführungen erleichtern das Verlegen der Kabel
  • Vernetzbar und mittels offenem Standard (BACnet) in die Gebäudeautomation integrierbar
Mehr anzeigen
  • Eigenständige Fehlererkennung und Protokollierung
  • Frei parametrierbare Ein- und Ausgänge für unterschiedliche Funktionen
  • Integrierter Akku für Notöffnung bei Stromausfall
  • Selbstreinigender Rollenwagen reduziert den Wartungsaufwand
  • Verschiedene mechanische und elektrische Verriegelungen sind optional verfügbar
  • Service Schnittstelle für einfache Wartung
Kontaktieren Sie uns

Der neue ECdrive T2-FR sorgt mit seinem schlanken Design für neue Gestaltungsmöglichkeiten und das zu einem hervorragenden Preis-Leistungsverhältnis. In Verbindung mit dem Profilsystem GCprofile Therm wird die Energieeffizienz zusätzlich verbessert.

Anwendungsbereiche

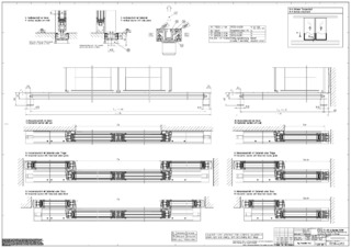
  • Ein- und zweiflügelige Schiebetürsysteme in Flucht- und Rettungswegen
  • Innen- und Außentüren mit hoher Begehfrequenz
  • Komplettlösung für Eingangsbereiche mit GCprofile Therm und Oberlicht
  • Bei erhöhten Anforderungen an die Dichtheit oder Energieeffizienz
  • Öffnungsweiten von 700 bis 3000 mm möglich
  • Türflügelgewichte bis 140 kg je Flügel
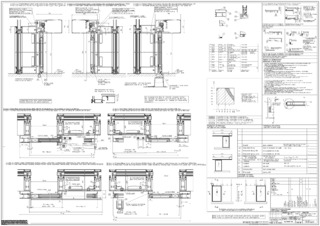
  • Geeignete Profilsysteme sind feingerahmtes Profilsystem mit Isolier- und Mono-Glas, GCprofile Therm, ESG-Klemmprofil, bauseitige Rahmen- und Holzflügel

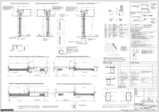
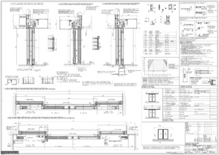
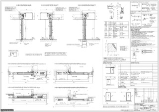
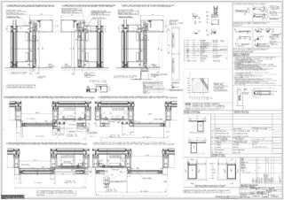
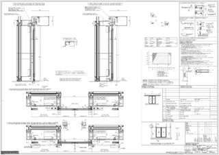
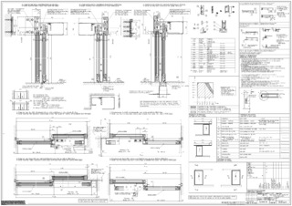
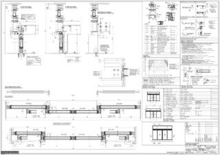
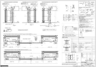
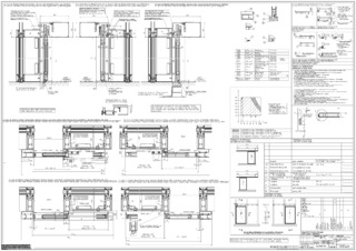
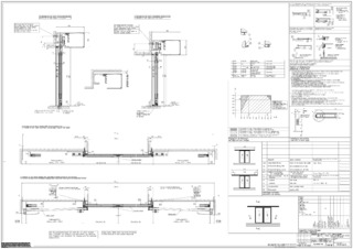
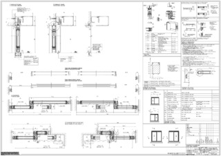
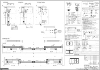
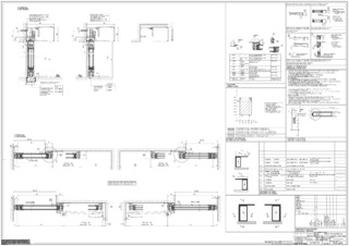
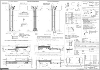
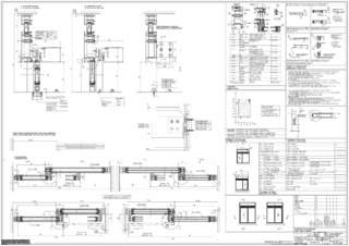
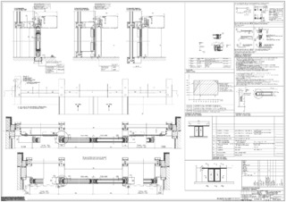
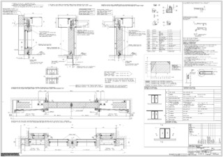
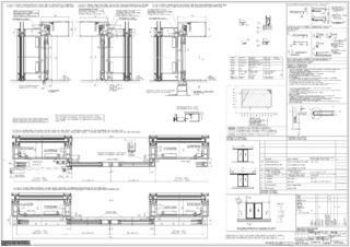
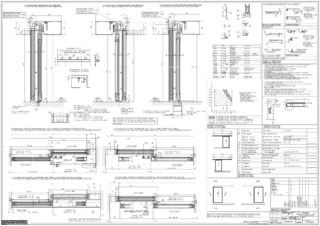
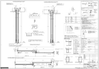
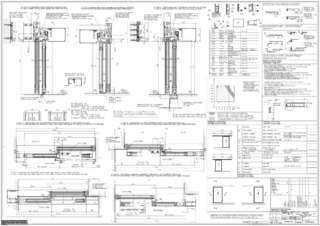
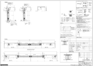
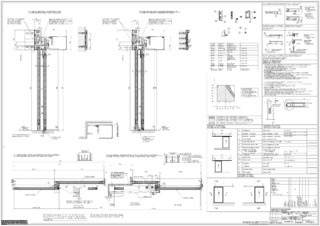
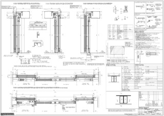
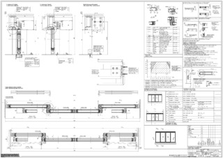
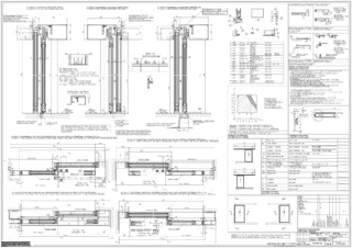
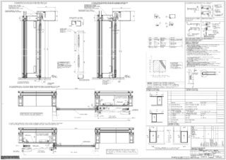
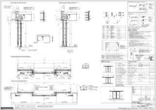
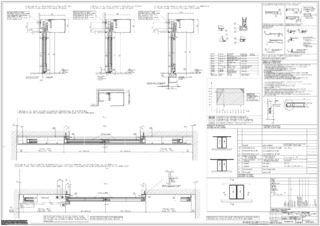
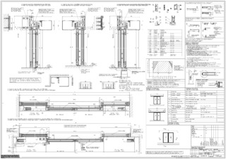
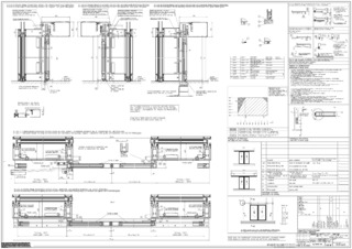
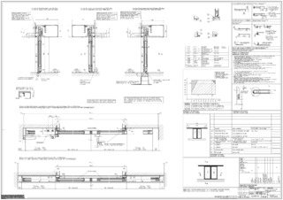
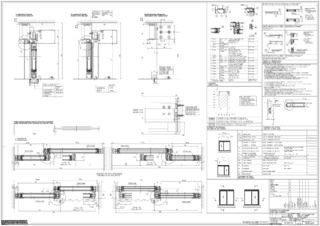
Technische Daten zum Produkt

ECdrive T2-FR
Für 1-flügelige Türsysteme Ja
Für 2-flügelige Türsysteme Ja
Isolierglas feingerahmt Ja
MONO-Glas feingerahmt Ja
ESG-Klemmprofil Ja
Rahmenflügel (bauseitig) Ja
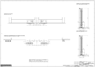
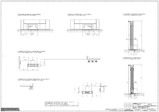
Höhe 100 mm
Tiefe 190 mm
Flügelgewicht (max.) 1-flügelig 120 kg
Flügelgewicht (max.) 1-flügelig mit GCprofile Therm und Doppelrollenwagen 140 kg
Flügelgewicht (max.) 2-flügelig 120 kg
Flügelgewicht (max.) 2-flügelig mit GCprofile Therm und Doppelrollenwagen 140 kg
Öffnungsweite 1-flügelig 700 mm - 3000 mm
Öffnungsweite 1-flügelig mit GCprofile Therm 1500 mm
Öffnungsweite 2-flügelig 900 mm - 3000 mm
Öffnungsweite 2-flügelig mit GCprofile Therm 3000 mm
Betriebstemperatur -15 - 50 °C
Schutzart IP20
Netztrennung Hauptschalter im Antrieb
Normkonformität AutSchR, DIN 18650, DIN EN ISO 13849: Performance Level D, EN 16005

Downloads

Varianten & Zubehör

Kontakt

GEZE Zentrale +43-6225-87180 - 0 Architektenhotline +43-6225-87-180-109 GEZE Service +43-6225-87180 - 900