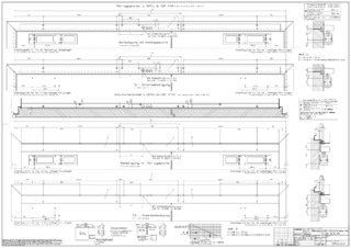
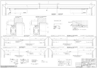
TS 5000 L-ISM VPK * Gleitschienentürschließersystem Bandgegenseite für zweiflügelige Türen mit Antipanikfunktion und Schließfolgeregelung
- Komplettverpackung mit zwei Türschließern TS 5000 L und TS 5000 L-IS mit ISM Gleitschiene
- Stufenlos einstellbare Schließkraft von EN 2-6
- Für rechts und links angeschlagene Türen ohne Umstellung verwendbar
- Vollpanikfunktion an beiden Türflügeln bis x-Maß 110 mm
- Schließfolgeregelung hält den Gangflügel in Warteposition bis der Standflügel geschlossen ist
- Hydraulischer Endschlag, der die Tür kurz vor Geschlossenlage beschleunigt
- Schließgeschwindigkeit kann individuell angepasst werden
- Integrierte Öffnungsdämpfung, bremst stark aufgeworfene Türen ab
- Optische Schließkraftanzeige zum leichten Kontrollieren der Einstellung
- Alle Funktionen von vorn einstellbar
Anwendungsbereiche
- Feuer- und Rauchschutztüren
- Zweiflügelige Anschlagtüren mit Panikfunktion
- Symmetrische und asymmetrische Türteilung möglich
- Anschlagtüren bis 2800 mm Bandabstand und 1400 mm Flügelbreite, für Türgewichte bis 180 kg
- Türblattmontage Bandgegenseite
Einbausituationen in Referenzobjekten und Videos
Technische Daten zum Produkt
| TS 5000 L-ISM VPK | |
| Barrierefrei nach DIN 18040 bis Flügelbreite (max.) in mm | 1100 mm |
| Flügelbreite (max.) | 1400 mm |
| Montageart | Türblattmontage Bandgegenseite |
| Öffnungswinkel (max.) | 130 ° |
| Minimaler Bandabstand | 1300 mm |
| Minimale Standflügelbreite | 380 mm |
| Eignung Brandschutztüren | Ja |
| Schließkraft einstellbar | Ja, stufenlos |
| Schließgeschwindigkeit einstellbar | Ja |
| Endschlag einstellbar | Ja, über Ventil |
| Öffnungsdämpfung integriert | Ja, hydraulisch einstellbar |
| Position Schließkraftverstellung | Vorn |
| Optische Schließkraftanzeige | Ja |
| Schließfolgeregelung integriert | Ja |
Downloads
Varianten & Zubehör
* Hinweis zu den gezeigten Produkten
Die aufgeführten Produkte können in der Form, Art, Eigenschaft und Funktion (Design, Maße, Verfügbarkeit, Zulassungen, Normen usw.) länderspezifisch abweichen. Kontaktieren Sie hierzu bitte Ihren GEZE Ansprechpartner oder senden Sie uns gerne eine E-Mail .