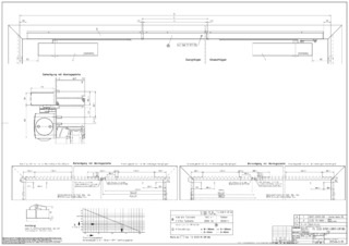
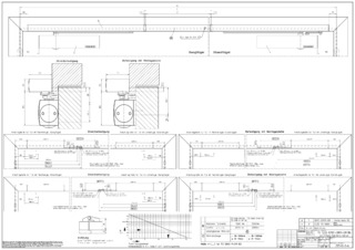
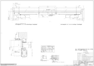
E-ISM-Gleitschiene BG TS 5000 * Mit Schließfolgeregelung, beidseitiger elektrischer Feststellung und Hebeln
- Elektrische Feststellung in der Gleitschiene mit Feststellbereich 80°-130°
- Haltekraft der elektromechanischen Feststellung stufenlos einstellbar
- Betriebsspannung 24 V DC
- Schließfolgeregelung hält den Gangflügel in Warteposition bis der Standflügel geschlossen ist
- Vandalismusschutz durch flexiblen Bowdenzug
- Durch Langlöcher in der Montageposition um 4 mm horizontal verstellbar
Anwendungsbereiche
- Zweiflügelige Türen mit Schließfolgeregelung
- Feststellanlagen mit integrierter Feststellung
- Montage auf der Bandgegenseite
- Rechte und linke Anschlagtüren
- Symmetrische und asymmetrische Türteilung möglich
Technische Daten zum Produkt
| E-ISM-Gleitschiene BG TS 5000 | |
| Eingangsspannung | 24 V DC |
| Elektrische Leistungsaufnahme | 4.8 W |
| Einschaltdauer | 100 % |
| Restwelligkeit | 20 % |
| Schutzart | IP43 |
| Minimaler Bandabstand | 1360 mm |
| Minimale Standflügelbreite | 380 mm |
| Normkonformität | EN 1155, EN 1158 |
| Länge | 2665 mm |
| Breite | 55 mm |
| Höhe | 30 mm |
| Öffnungsbegrenzung nachrüstbar | Ja |
| Feststellung | Elektrisch |
| Feststellung am Gangflügel / Standflügel | Ja / Ja |
| Feststellung überfahrbar | Ja |
| Feststellbereich | 80 ° |
| Schließfolgeregelung integriert | Ja |
| Höhenkorrektur möglich | Ja |
| Flexible Öffnungsbegrenzung | Ja |
Downloads
KENNZEICHNUNGSPFLICHT: © GEZE GmbH
Varianten & Zubehör
* Hinweis zu den gezeigten Produkten
Die aufgeführten Produkte können in der Form, Art, Eigenschaft und Funktion (Design, Maße, Verfügbarkeit, Zulassungen, Normen usw.) länderspezifisch abweichen. Kontaktieren Sie hierzu bitte Ihren GEZE Ansprechpartner oder senden Sie uns gerne eine E-Mail .