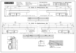
Sturzfutterwinkel E-Gleitschiene BG TS 5000 * für E-Gleitschiene
- Mit Bohrungen für die Befestigung
Anwendungsbereiche
- Montage der Gleitschiene im Sturz bei Montage auf Bandgegenseite
Downloads
KENNZEICHNUNGSPFLICHT: © GEZE GmbH
Varianten & Zubehör
* Hinweis zu den gezeigten Produkten
Die aufgeführten Produkte können in der Form, Art, Eigenschaft und Funktion (Design, Maße, Verfügbarkeit, Zulassungen, Normen usw.) länderspezifisch abweichen. Kontaktieren Sie hierzu bitte Ihren GEZE Ansprechpartner oder senden Sie uns gerne eine E-Mail .