Schließkörper TS 5000 ECline * Grundkörper für Gleitschienentürschließer EN 3-5 mit Öffnungsdämpfung
- Stufenlos von vorn einstellbare Schließkraft
- Optische Größenanzeige der Schließkraft sorgt für die richtige Einstellung
- Schließgeschwindigkeit über Ventil von vorn einstellbar
- Endschlag über Ventil von vorn einstellbar
- Öffnungsdämpfung über Ventil von vorn einstellbar
- Türschließer für rechts und links angeschlagene Türen verwendbar
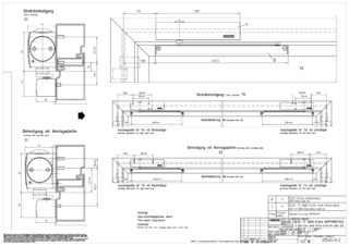
- Geringer Montageaufwand durch wenig Einzelteile und schnelle Einstellung
- Barrierefrei nach DIN 18040 bis EN 5 (1250 mm Flügelbreite)
Anwendungsbereiche
- Feuer- und Rauchschutztüren
- Rechte und linke Anschlagtüren
- Anschlagtüren bis 1250 mm Flügelbreite
- Türblattmontage Bandseite
- Barrierefreie Zugänge nach DIN 18040 bis EN 5
Einbausituationen in Referenzobjekten und Videos
Technische Daten zum Produkt
| Schließkörper TS 5000 ECline | |
| Schließkraft nach EN 1154 | EN 3 - 5 |
| Flügelbreite (max.) | 1250 mm |
| Montageart | Türblattmontage Bandseite |
| Öffnungswinkel (max.) | 180 ° |
| Gleiche Ausführung DIN-L und DIN-R | Ja |
| Normkonformität | DIN 18040, EN 1154:1996/A1:2002/AC:2006 |
| Eignung Brandschutztüren | Ja |
| Länge | 287 mm |
| Breite | 47 mm |
| Höhe | 60 mm |
| Schließkraft einstellbar | Ja, stufenlos |
| Schließgeschwindigkeit einstellbar | Ja |
| Endschlag einstellbar | Ja, über Ventil |
| Öffnungsdämpfung integriert | Ja, hydraulisch einstellbar |
| Position Schließkraftverstellung | Vorn |
| Optische Schließkraftanzeige | Ja |
| Sicherheitsventil gegen Überlast | Ja |
| Thermostabilisierte Ventile | Ja |
Downloads
Varianten & Zubehör
* Hinweis zu den gezeigten Produkten
Die aufgeführten Produkte können in der Form, Art, Eigenschaft und Funktion (Design, Maße, Verfügbarkeit, Zulassungen, Normen usw.) länderspezifisch abweichen. Kontaktieren Sie hierzu bitte Ihren GEZE Ansprechpartner oder senden Sie uns gerne eine E-Mail .