TS 5000 SoftClose E * Gleitschienentürschließer für einflügelige Türen bis 1400 mm Flügelbreite mit Endschlag/-bremsfunktion mit elektrischer Feststellung
- Stufenlos einstellbare Schließkraft von EN 2-6
- Betriebsspannung 24 V DC
- Für rechts und links angeschlagene Türen ohne Umstellung verwendbar
- Elektrische Feststellung in der Gleitschiene mit Feststellbereich 80°-130°
- Rauchschalterzentrale anschließbar, deren Signal im Brandfall die Tür selbstständig schließen lässt
- Endschlag / Endbremse über Ventil von vorn einstellbar
- Schließgeschwindigkeit kann individuell angepasst werden
- Integrierte Öffnungsdämpfung, bremst stark aufgeworfene Türen ab
- Optische Schließkraftanzeige zum leichten Kontrollieren der Einstellung
- Alle Funktionen von vorn einstellbar
- Abfrage der Offenhaltung des Türflügels über potenzialfreien Kontakt der elektrischen Feststellung
Anwendungsbereiche
- Feuer- und Rauchschutztüren
- Rechte und linke Anschlagtüren
- Anschlagtüren bis 1400 mm Flügelbreite
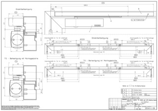
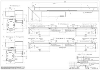
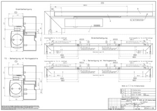
- Türblattmontage Bandseite
- Feststellanlagen mit integrierter Feststellung
Einbausituationen in Referenzobjekten und Videos
Technische Daten zum Produkt
| TS 5000 SoftClose E | |
| Schließkraft nach EN 1154 | EN 2 - 6 |
| Barrierefrei nach DIN 18040 bis Flügelbreite (max.) in mm | 1400 mm |
| Flügelbreite (max.) | 1400 mm |
| Montageart | Türblattmontage Bandseite |
| Öffnungswinkel (max.) | 180 ° |
| Eingangsspannung | 24 V DC |
| Eignung Brandschutztüren | Ja |
| Schließkraft einstellbar | Ja, stufenlos |
| Schließgeschwindigkeit einstellbar | Ja |
| Endschließgeschwindigkeit, einstellbar | Ja |
| Öffnungsdämpfung integriert | Ja, hydraulisch einstellbar |
| Position Schließkraftverstellung | Vorn |
| Optische Schließkraftanzeige | Ja |
| Feststellung | Elektrisch |
| Feststellbereich | 80 ° - 130 ° |
Downloads
KENNZEICHNUNGSPFLICHT: © GEZE GmbH
Varianten & Zubehör
* Hinweis zu den gezeigten Produkten
Die aufgeführten Produkte können in der Form, Art, Eigenschaft und Funktion (Design, Maße, Verfügbarkeit, Zulassungen, Normen usw.) länderspezifisch abweichen. Kontaktieren Sie hierzu bitte Ihren GEZE Ansprechpartner oder senden Sie uns gerne eine E-Mail .