TS 5000 EFS 3-6 * Gleitschienentürschließer für einflügelige Türen bis 1400 mm Flügelbreite mit elektrischer Freilauffunktion
- Stufenlos einstellbare Schließkraft von EN 3-6
- Betriebsspannung 24 V DC
- Für rechts und links angeschlagene Türen ohne Umstellung verwendbar
- Freilauffunktion ermöglicht das Begehen der Tür mit geringem Kraftaufwand
- Komfortrastfunktion arretiert die Tür am Ende des Freilaufbereichs
- Externe Rauchschalterzentrale, deren Signal im Brandfall die Tür selbstständig schließt
- Hydraulischer Endschlag, der die Tür kurz vor Geschlossenlage beschleunigt
- Schließgeschwindigkeit kann individuell angepasst werden
- Optische Schließkraftanzeige zum leichten Kontrollieren der Einstellung
- Alle Funktionen von vorn einstellbar
Anwendungsbereiche
- Feuer- und Rauchschutztüren
- Rechte und linke Anschlagtüren
- Anschlagtüren bis 1400 mm Flügelbreite
- Türblattmontage Bandseite und Kopfmontage Bandseite (unterschiedliche Varianten)
- Feststellanlagen mit integrierter Feststellung mit Freilauf
- Barrierefreie Zugänge nach DIN 18040
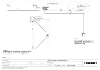
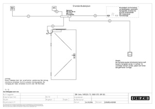
Einbausituationen in Referenzobjekten und Videos
Technische Daten zum Produkt
| TS 5000 EFS 3-6 | |
| Schließkraft nach EN 1154 | EN 3 - 6 |
| Barrierefrei nach DIN 18040 bis Flügelbreite (max.) in mm | 1400 mm |
| Flügelbreite (max.) | 1400 mm |
| Montageart | Türblattmontage Bandseite |
| Öffnungswinkel (max.) | 180 ° |
| Eingangsspannung | 24 V DC |
| Eignung Brandschutztüren | Ja |
| Freilaufbereich | 85 ° - 160 ° |
| Schließkraft einstellbar | Ja, stufenlos |
| Schließgeschwindigkeit einstellbar | Ja |
| Endschlag einstellbar | Ja, über Ventil |
| Öffnungsdämpfung integriert | Nein |
| Position Schließkraftverstellung | Vorn |
| Optische Schließkraftanzeige | Ja |
| Feststellung | Elektrisch, für Freilauffunktion |
Downloads
Varianten & Zubehör
* Hinweis zu den gezeigten Produkten
Die aufgeführten Produkte können in der Form, Art, Eigenschaft und Funktion (Design, Maße, Verfügbarkeit, Zulassungen, Normen usw.) länderspezifisch abweichen. Kontaktieren Sie hierzu bitte Ihren GEZE Ansprechpartner oder senden Sie uns gerne eine E-Mail .