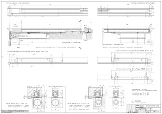
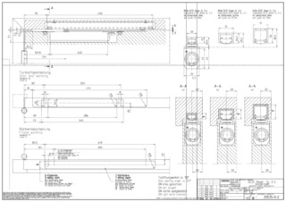
Schließkörper Boxer 2-4 * Grundkörper für integrierte Türschließer EN 2-4 mit Öffnungsdämpfung
- Alle Funktionen sind im eingebauten Zustand einstellbar
- Stufenlos von oben einstellbare Schließkraft
- Schließgeschwindigkeit über Ventile von oben einstellbar
- Endschlag über Ventil von oben einstellbar
- Öffnungsdämpfung über Ventil von oben einstellbar
- Türschließer für rechts und links angeschlagene Türen verwendbar
- Achsverlängerungen bis 8 mm verfügbar
- Geringer Montageaufwand durch wenig Einzelteile und schnelle Einstellung
Anwendungsbereiche
- Feuer- und Rauchschutztüren, Eignungsnachweis mit der Tür erforderlich
- Rechte und linke Anschlagtüren
- Anschlagtüren bis 1100 mm Flügelbreite, für Türgewichte bis 130 kg
- Für Türblattstärken ab 40 mm
- Integrierte Montage
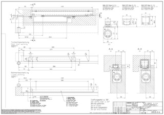
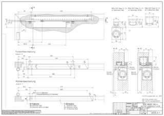
Technische Daten zum Produkt
| Schließkörper Boxer 2-4 | |
| Schließkraft nach EN 1154 | EN 2 - 4 |
| Flügelbreite (max.) | 1100 mm |
| Flügelgewicht (max.) | 130 kg |
| Öffnungswinkel (max.) | 120 ° |
| Gleiche Ausführung DIN-L und DIN-R | Ja |
| Normkonformität | EN 1154:1996/A1:2002/AC:2006 |
| Eignung Brandschutztüren | Ja |
| Länge | 286 mm |
| Breite | 32 mm |
| Höhe | 45 mm |
| Schließkraft einstellbar | Ja, stufenlos |
| Schließgeschwindigkeit einstellbar | Ja |
| Endschlag einstellbar | Ja, über Ventil |
| Öffnungsdämpfung integriert | Ja, hydraulisch einstellbar |
| Position Schließkraftverstellung | Oben |
| Sicherheitsventil gegen Überlast | Ja |
Downloads
KENNZEICHNUNGSPFLICHT: © GEZE GmbH
Varianten & Zubehör
* Hinweis zu den gezeigten Produkten
Die aufgeführten Produkte können in der Form, Art, Eigenschaft und Funktion (Design, Maße, Verfügbarkeit, Zulassungen, Normen usw.) länderspezifisch abweichen. Kontaktieren Sie hierzu bitte Ihren GEZE Ansprechpartner oder senden Sie uns gerne eine E-Mail .