TS 550 NV * Bodentürschließer für einflügelige Anschlag- und Pendeltüren bis 1400 mm Flügelbreite mit einstellbarer Schließkraft EN 3-6 und mit ein- und ausschaltbarer Feststellung
- Stufenlos einstellbare Schließkraft von EN 3-6
- Für rechts und links angeschlagene Türen ohne Umstellung verwendbar
- Schließverzögerung einstellbar, um die Schließgeschwindigkeit der Tür bis ca. 80° Öffnungswinkel anzupassen
- Mechanische Feststellung im Schließer mit Feststellbereich 80°-165°
- Hydraulischer Endschlag, der die Tür kurz vor Geschlossenlage beschleunigt
- Schließgeschwindigkeit kann individuell angepasst werden
- Integrierte Öffnungsdämpfung, bremst stark aufgeworfene Türen ab
- Alle Funktionen von oben und im eingebauten Zustand einstellbar
Anwendungsbereiche
- Rechte und linke Anschlag- und Pendeltüren
- Anschlag- und Pendeltüren bis 1400 mm Flügelbreite und 300 kg Gewicht
- Stark frequentierte und schwere Türen
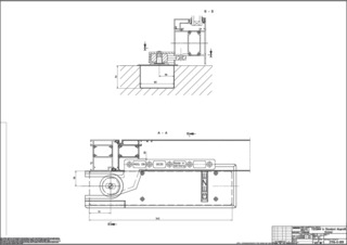
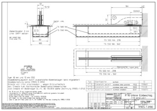
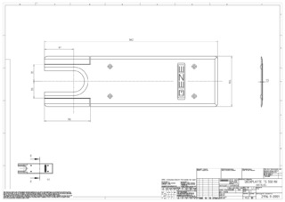
- Bodenmontage verdeckt liegend
Einbausituationen in Referenzobjekten und Videos
Technische Daten zum Produkt
| TS 550 NV | |
| Einsatz an Anschlag-/Pendeltür | Anschlagtür, Pendeltür |
| Montageart | Boden |
| Öffnungswinkel (max.) | 170 ° |
| Schließkraft nach EN 1154 | EN 3 - 6 |
| Flügelbreite (max.) | 1400 mm |
| Flügelgewicht (max.) | 300 kg |
| DIN Richtung | links / rechts |
| Schließkraft einstellbar | Ja, stufenlos |
| Schließgeschwindigkeit einstellbar | Ja |
| Endschlag einstellbar | Ja, über Ventil |
| Öffnungsdämpfung integriert | mechanisch fix |
| Schließverzögerung integriert | Ja |
| Position Schließkraftverstellung | Oben |
| Feststellung | Mechanisch |
| Feststellbereich | 80 ° - 165 ° |
Downloads
Varianten & Zubehör
* Hinweis zu den gezeigten Produkten
Die aufgeführten Produkte können in der Form, Art, Eigenschaft und Funktion (Design, Maße, Verfügbarkeit, Zulassungen, Normen usw.) länderspezifisch abweichen. Kontaktieren Sie hierzu bitte Ihren GEZE Ansprechpartner oder senden Sie uns gerne eine E-Mail .