Schließkörper TS 500 N EN 3 * Grundkörper für Bodentürschließer EN 3
- Fixe Schließkraft von EN 3
- Für rechts und links angeschlagene Türen ohne Umstellung verwendbar
- Schließgeschwindigkeit kann individuell angepasst werden
- Hydraulischer Endschlag, der die Tür kurz vor Geschlossenlage beschleunigt
- Integrierte Öffnungsdämpfung, bremst stark aufgeworfene Türen ab
- Alle Funktionen von oben und im eingebauten Zustand einstellbar
Anwendungsbereiche
- Rechte und linke Anschlag- und Pendeltüren
- Anschlag- und Pendeltüren bis 950 mm Flügelbreite und 100 kg Gewicht
- Bodenmontage verdeckt liegend
- Verwendung an Feuer- und Rauchschutztüren nicht erlaubt.
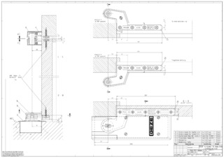
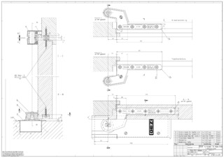
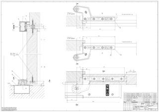
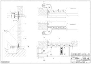
Technische Daten zum Produkt
| Schließkörper TS 500 N EN 3 | |
| Einsatz an Anschlag-/Pendeltür | Anschlagtür, Pendeltür |
| Öffnungswinkel (max.) | 170 ° |
| Schließkraft nach EN 1154 | EN 3 |
| Flügelbreite (max.) | 950 mm |
| Flügelgewicht (max.) | 100 kg |
| DIN Richtung | links / rechts |
| Normkonformität | EN 1154:1996/A1:2002/AC:2006 |
| Länge | 278 mm |
| Breite | 82 mm |
| Höhe | 42 mm |
| Verstellbereich Zementkasten Länge | 10 mm |
| Verstellbereich Zementkasten Breite | 10 mm |
| Verstellbereich Zementkasten Höhe | 6 mm |
| Schließkraft einstellbar | Nein |
| Schließgeschwindigkeit einstellbar | Ja |
| Endschlag einstellbar | Nein |
| Öffnungsdämpfung integriert | mechanisch fix |
| Sicherheitsventil gegen Überlast | Ja |
| Thermostabilisierte Ventile | Ja |
| Schließwirkung ab | 170 ° |
| Feststellung | Optional |
| Feststellbereich | 85 ° - 120 ° |
Downloads
Varianten & Zubehör
* Hinweis zu den gezeigten Produkten
Die aufgeführten Produkte können in der Form, Art, Eigenschaft und Funktion (Design, Maße, Verfügbarkeit, Zulassungen, Normen usw.) länderspezifisch abweichen. Kontaktieren Sie hierzu bitte Ihren GEZE Ansprechpartner oder senden Sie uns gerne eine E-Mail .