Drehtürantriebssystem Slimdrive EMD 1-flg. * Elektromechanisches Drehtürantriebssystem für einflügelige Anschlagtüren
- Öffnungs- und Schließgeschwindigkeit kann individuell angepasst werden
- Elektrischer Endschlag, der die Tür kurz vor Geschlossenlage beschleunigt
- Low-Energy-Funktion öffnet und schließt die Tür mit reduzierter Fahrgeschwindigkeit und erfüllt damit höchste Sicherheitsanforderungen
- Windfang-Funktion regelt das Öffnen und Schließen von zwei hintereinander liegenden Türen (Schleuse)
- Hinderniserkennung bemerkt ein Hindernis durch Berührung und stoppt den Öffnungs- oder Schließvorgang
- Automatische Reversierung erkennt ein Hindernis und kehrt zurück in die Öffnungsposition
- Push & Go-Funktion löst nach leichtem manuellen Druck auf das Türblatt die Antriebsautomatik aus
- Antrieb kann mit Rollenschiene oder Gestänge verwendet werden
Anwendungsbereiche
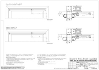
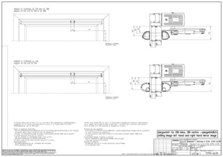
- Einflügelige rechte und linke Anschlagtüren
- Anschlagtüren bis 1400 mm Flügelbreite oder 180 kg Gewicht
- Innen- und Außentüren mit hoher Begehfrequenz
- Türblattmontage und Kopfmontage
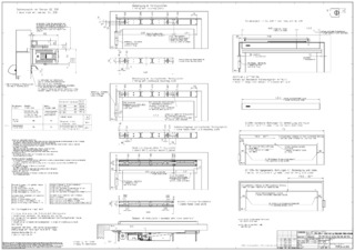
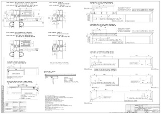
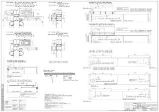
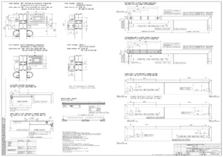
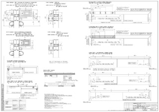
Technische Daten zum Produkt
| Drehtürantriebssystem Slimdrive EMD 1-flg. | |
| Höhe | 70 mm |
| Tiefe | 121 mm |
| Flügelgewicht (max.) 1-flügelig | 180 kg |
| Bandmaß (min.-max.) 2-flügelig | 1500 mm - 2800 mm |
| Flügelbreite (min.-max.) | 750 mm - 1400 mm |
| Leibungstiefe (max.) | 400 mm |
| Türüberschlag (max.) | 30 mm |
| Antriebstyp | Elektromechanisch |
| Öffnungswinkel (max.) | 130 ° |
| DIN links | Ja |
| DIN rechts | Ja |
| Kopfmontage Bandgegenseite mit Gestänge | Ja |
| Kopfmontage Bandgegenseite mit Rollenschiene | Ja |
| Kopfmontage Bandseite mit Rollenschiene | Ja |
| Türblattmontage Bandseite mit Rollenschiene | Ja |
| Elektrischer Endschlag | Ja |
| Elektrische Schließfolgeregelung | Ja |
| Netztrennung | Hauptschalter im Antrieb |
| Ansteuerverzögerung (max.) | 20 s |
| Betriebsspannung | 230 V |
| Nennleistung | 230 W |
| Stromversorgung für externe Verbraucher (24 V DC) | 1000 mA |
| Betriebstemperatur | -15 - 50 °C |
| Schutzart | IP20 |
| Betriebsart | Aus, Automatik, Daueroffen, Ladenschluss, Nacht |
| Funktionsart | Vollautomat |
| Funktion Automatik | Ja |
| Funktion Low-Energy | Ja |
| Funktion Tasten | Ja |
| Windfangfunktion | Ja |
| Hinderniserkennung | Ja |
| Automatische Reversierung | Ja |
| Push & Go | einstellbar |
| Bedienung | Programmschalter DPS, Programmschalter im Antrieb integriert |
| Parametrierung | GEZEconnects (PC + Bluetooth), Serviceterminal ST 220, Programmschalter DPS |
| Normkonformität | DIN 18650, EN 16005 |
Downloads
KENNZEICHNUNGSPFLICHT: © Stefan Dauth / GEZE GmbH
KENNZEICHNUNGSPFLICHT: © Oliver Look / GEZE GmbH
KENNZEICHNUNGSPFLICHT: © Oliver Look / GEZE GmbH
KENNZEICHNUNGSPFLICHT: © Oliver Look / GEZE GmbH
KENNZEICHNUNGSPFLICHT: © GEZE GmbH
KENNZEICHNUNGSPFLICHT: © GEZE GmbH
Varianten & Zubehör
* Hinweis zu den gezeigten Produkten
Die aufgeführten Produkte können in der Form, Art, Eigenschaft und Funktion (Design, Maße, Verfügbarkeit, Zulassungen, Normen usw.) länderspezifisch abweichen. Kontaktieren Sie hierzu bitte Ihren GEZE Ansprechpartner oder senden Sie uns gerne eine E-Mail .