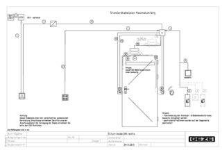
Drehtürantriebssystem ECturn Inside * Integrierbares elektromechanisches Drehtürantriebssystem für barrierefreie einflügelige Türen bis 125 kg
- Antrieb ist in Türblatt oder Zarge eingelassen und erfüllt höchste Designansprüche
- Öffnungs- und Schließgeschwindigkeit kann individuell angepasst werden
- Elektrischer Endschlag, der die Tür kurz vor Geschlossenlage beschleunigt
- Low-Energy-Funktion öffnet die Tür mit reduzierter Fahrgeschwindigkeit und erfüllt damit höchste Sicherheitsanforderungen
- Hinderniserkennung bemerkt ein Hindernis durch Berührung und stoppt den Öffnungs- oder Schließvorgang
- Automatische Reversierung erkennt ein Hindernis und kehrt zurück in die Öffnungsposition
- Push & Go-Funktion löst nach leichtem manuellen Druck auf das Türblatt die Antriebsautomatik aus
- Antrieb wird mit Gleitschiene verwendet
- Optionaler Akku sorgt bei Stromausfall für maximale Sicherheit
- Optionale Funkempfangsplatine für kabellose Ansteuerung per Funksender
Anwendungsbereiche
- Einflügelige rechte und linke Anschlagtüren
- Anschlagtüren bis 1100 mm Flügelbreite oder 125 kg Gewicht
- Eingangs- und Innentüren mit mäßiger Begehfrequenz
- Für Türblattstärken ab 55 mm
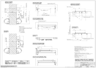
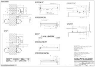
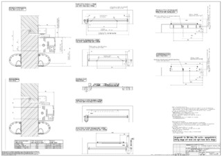
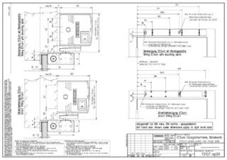
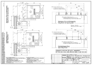
- Integrierte Montage in Türflügel oder Zarge
- Barrierefreie Zugänge
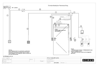
Einbausituationen in Referenzobjekten und Videos
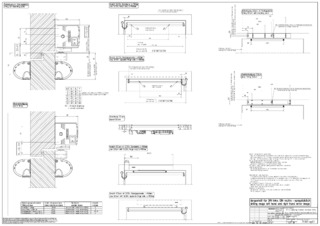
Technische Daten zum Produkt
| Drehtürantriebssystem ECturn Inside | |
| Höhe | 61 mm |
| Breite | 566 mm |
| Tiefe | 45 mm |
| Flügelgewicht (max.) 1-flügelig | 125 kg |
| Flügelbreite (min.-max.) | 700 mm - 1100 mm |
| Antriebstyp | Elektromechanisch |
| Öffnungswinkel (max.) | 110 ° |
| DIN links | Ja |
| DIN rechts | Ja |
| Montage im Türblatt | Ja |
| Montage im Türrahmen | Ja |
| Elektrischer Endschlag | Ja |
| Ansteuerverzögerung (max.) | 10 s |
| Betriebsspannung | 110 – 230 V |
| Nennleistung | 92 W |
| Stromversorgung für externe Verbraucher (24 V DC) | 600 mA |
| Betriebstemperatur | -15 - 50 °C |
| Schutzart | IP20 |
| Betriebsart | Aus, Automatik, Daueroffen, Nacht |
| Funktionsart | Vollautomat |
| Funktion Automatik | Ja |
| Funktion Low-Energy | Ja |
| Funktion Tasten | Ja |
| Hinderniserkennung | Ja |
| Automatische Reversierung | Ja |
| Push & Go | einstellbar |
| Bedienung | Programmschalter im Antrieb integriert, Programmschalter TPS, Programmschalter MPS |
| Parametrierung | Steuerung, Programmschalter DPS |
| Normkonformität | EN 16005 |
Downloads
Varianten & Zubehör
* Hinweis zu den gezeigten Produkten
Die aufgeführten Produkte können in der Form, Art, Eigenschaft und Funktion (Design, Maße, Verfügbarkeit, Zulassungen, Normen usw.) länderspezifisch abweichen. Kontaktieren Sie hierzu bitte Ihren GEZE Ansprechpartner oder senden Sie uns gerne eine E-Mail .