Drehtürantriebssystem ECturn * Elektromechanisches Drehtürantriebssystem für barrierefreie einflügelige Türen bis 125 kg
- Öffnungs- und Schließgeschwindigkeit kann individuell angepasst werden
- Elektrischer Endschlag, der die Tür kurz vor Geschlossenlage beschleunigt
- Low-Energy-Funktion öffnet und schließt die Tür mit reduzierter Fahrgeschwindigkeit und erfüllt damit höchste Sicherheitsanforderungen
- Hinderniserkennung bemerkt ein Hindernis durch Berührung und stoppt den Öffnungs- oder Schließvorgang
- Automatische Reversierung erkennt ein Hindernis und kehrt zurück in die Öffnungsposition
- Push & Go-Funktion löst nach leichtem manuellen Druck auf das Türblatt die Antriebsautomatik aus
- Antrieb kann mit Gleitschiene oder Gestänge verwendet werden
- Glasgleitschiene erhältlich zur Verwendung an Glastüren mit einer Glasstärke von 8-10 mm
- Optionaler Akku sorgt bei Stromausfall für maximale Sicherheit
- Optionale Funkempfangsplatine für kabellose Ansteuerung per Funksender
Anwendungsbereiche
- Einflügelige rechte und linke Anschlagtüren
- Anschlagtüren bis 1100 mm Flügelbreite oder 125 kg Gewicht
- Eingangs- und Innentüren mit mäßiger Begehfrequenz
- Automatisierung rahmenloser Ganzglastüren
- Türblattmontage und Kopfmontage
- Barrierefreie Zugänge
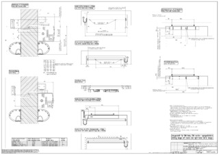
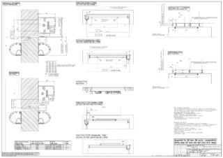
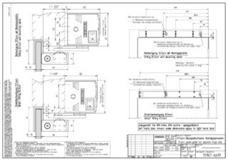
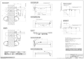
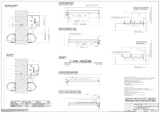
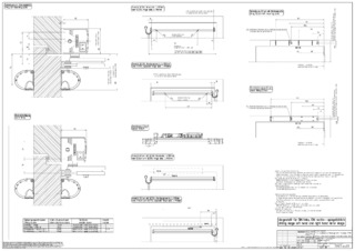
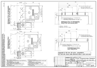
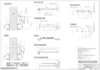
Technische Daten zum Produkt
| Drehtürantriebssystem ECturn | |
| Höhe | 60 mm |
| Breite | 580 mm |
| Tiefe | 60 mm |
| Flügelgewicht (max.) 1-flügelig | 125 kg |
| Flügelbreite (min.-max.) | 650 mm - 1100 mm |
| Leibungstiefe (max.) | 200 mm |
| Türüberschlag (max.) | 50 mm |
| Antriebstyp | Elektromechanisch |
| Öffnungswinkel (max.) | 110 ° |
| DIN links | Ja |
| DIN rechts | Ja |
| Kopfmontage Bandgegenseite mit Gestänge | Ja |
| Kopfmontage Bandgegenseite mit Gleitschiene | Ja |
| Kopfmontage Bandseite mit Gleitschiene | Ja |
| Kopfmontage Bandgegenseite mit Gleitschiene an Ganzglastüren | Ja |
| Kopfmontage Bandseite mit Gleitschiene an Ganzglastüren | Ja |
| Türblattmontage Bandgegenseite mit Gleitschiene | Ja |
| Türblattmontage Bandseite mit Gleitschiene | Ja |
| Türblattmontage Bandseite mit Gestänge | Ja |
| Elektrischer Endschlag | Ja |
| Netztrennung | Hauptschalter im Antrieb |
| Ansteuerverzögerung (max.) | 10 s |
| Betriebsspannung | 110 – 230 V |
| Nennleistung | 75 W |
| Stromversorgung für externe Verbraucher (24 V DC) | 600 mA |
| Betriebstemperatur | -15 - 50 °C |
| Schutzart | IP20 |
| Betriebsart | Aus, Automatik, Daueroffen, Nacht |
| Funktionsart | Vollautomat |
| Funktion Automatik | Ja |
| Funktion Low-Energy | Ja |
| Funktion Tasten | Ja |
| Hinderniserkennung | Ja |
| Automatische Reversierung | Ja |
| Push & Go | einstellbar |
| Bedienung | Programmschalter TPS, Programmschalter im Antrieb integriert |
| Parametrierung | Programmschalter DPS, Steuerung |
| Normkonformität | EN 16005 |
Downloads
KENNZEICHNUNGSPFLICHT: © Studio BE / GEZE GmbH
KENNZEICHNUNGSPFLICHT: © Studio BE / GEZE GmbH
KENNZEICHNUNGSPFLICHT: © Studio BE / GEZE GmbH
KENNZEICHNUNGSPFLICHT: © Studio BE / GEZE GmbH
KENNZEICHNUNGSPFLICHT: © GEZE GmbH
KENNZEICHNUNGSPFLICHT: © GEZE GmbH
KENNZEICHNUNGSPFLICHT: © GEZE GmbH
Varianten & Zubehör
* Hinweis zu den gezeigten Produkten
Die aufgeführten Produkte können in der Form, Art, Eigenschaft und Funktion (Design, Maße, Verfügbarkeit, Zulassungen, Normen usw.) länderspezifisch abweichen. Kontaktieren Sie hierzu bitte Ihren GEZE Ansprechpartner oder senden Sie uns gerne eine E-Mail .