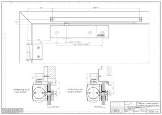
Mounting plate and counterplate all-glass door * For TS 5000/TS 4000
- For screwing through a pre-installed glass door
Application Areas
- Installation of the door closer on an all-glass door
Downloads
Variants & Accessories
* Notice about the products displayed
The products mentioned above may vary in form, type, characteristics and function (design, dimensions, availability, approvals, standards etc.) depending on the country. For questions please contact your GEZE contact person or send us an E-Mail .