Slimdrive EMD

Slimdrive EMD Invers 1-leaf swing door drive system * Electromechanical swing door system for single leaf SHEV air inlet systems

Slimdrive EMD Invers
  • Opening and closing speed can be individually adjusted
  • Electrical latching action which accelerates the door shortly before the closed position
  • Electrical closing sequence control holds the active leaf in the waiting position until the passive leaf is closed
  • Inverse function opens the door via spring force and closes it with a motorised function
  • Vestibule function controls the opening and closing of two consecutive doors (interlocking door system)
  • Obstacle detection detects an object through contact and stops the opening or closing process
Show more
  • Automatic reversing detects an obstacle and returns to the opening position
  • Push & Go function triggers the automatic drive following light manual pressure on the door leaf
  • Drive can be used with roller guide rail or link arm
Contact us

Application Areas

  • Doors along escape and rescue routes
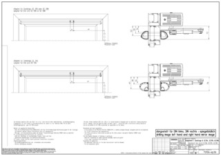
  • Single and double leaf right and left single-action doors
  • Single-action doors up to 2800 mm hinge clearance, 1400 mm leaf width and 230 kg weight
  • SHEV air inlet systems
  • Interior and exterior doors with high access frequency
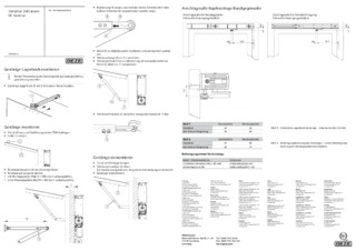
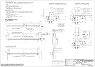
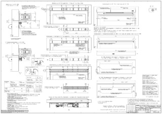
  • Door leaf installation and transom installation

Configuration Variants

  • Slimdrive EMD Invers

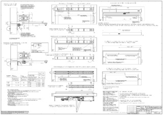
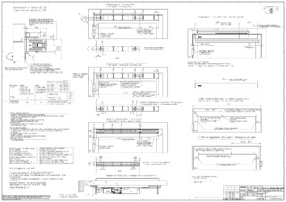
Technical data

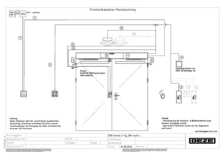
Slimdrive EMD Invers 1-leaf swing door drive system
Height 70 mm
Depth 121 mm
Leaf weight (max.) 1-leaf 230 kg
Distance centre door hinge-drive axis (min.-max.) 2-leaf 1500 mm - 2800 mm
Leaf width (min.-max.) 750 mm - 1400 mm
Reveal depth (max.) 400 mm
Door overlap (max.) 30 mm
Drive type Electromechanical
Opening angle (max.) 130 °
DIN left Yes
DIN right Yes
Transom installation opposite hinge side with link arm Yes
Transom installation opposite hinge side with roller guide rail Yes
Transom installation hinge side with roller guide rail Yes
Door leaf installation hinge side with roller guide rail Yes
Electrical latching action Yes
Electrical closing sequence control Yes
Disconnection from mains Main switch in the drive
Activation delay (max.) 20 s
Operating voltage 230 V
Power rating 230 W
Power supply for external consumers (24 V DC) 1000 mA
Service temperature -15 - 50 °C
IP rating IP20
Mode of operation Off, Automatic, Permanently open, Shop closing, Night
Type of function Fully automatic
Automatic function Yes
Low-energy function Yes
Key function Yes
Inverse function (opening by spring force) Yes
Vestibule function Yes
Obstacle detection Yes
Automatic reversing Yes
Push & Go adjustable
Operation Programme switch DPS, Programme switch integrated in the drive
Parameter setting GEZEconnects (PC + Bluetooth), Service terminal ST 220, Programme switch DPS
Standard conformity DIN 18650, EN 16005

Downloads

Variants & Accessories

Contact

GEZE Central +43-6225-87180 - 0 Hotline for architects +43-6225-87-180-109 GEZE Service +43-6225-87180 - 900